GCK/GCL1A系列低压抽出式开关柜
- 厂家信息
- 产品信息
- 规格参数
- 技术文档
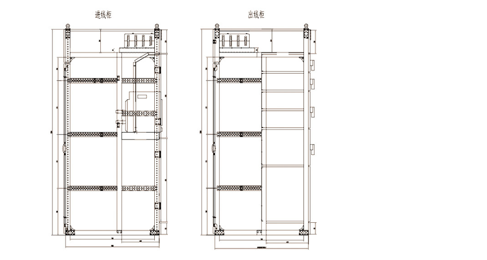
产品图片
GCK/GCL1A系列低压抽出式开关柜

产品概述
GCK系列电动机控制中心,主要是由一些组合式电动机控制单元,和其它功能单元组合而成。这些单元以上下重叠的方式安装在封闭的金属柜体内。用设置在柜体上方的水平母线,将每个柜体联结在一起,同一柜体的功能单元则并联在垂直母线上。柜体共分水平母线区、垂直母线区、电缆区和设备安装区等四个互相隔离区域,功能单元分别安装在各自的小室内,当任何一个功能单元发生事故时,均不影响其它单元,防止事故扩大。
本产品符合JB/T9661-1999标准。该产品采用IEC114规定的IP40防护等级,当所有的门和护板关闭时,或门开启时以及功能单元外于移出位置时,均能达到相应的防护等级,这样可确保人身安全。
该产品设置有完善可靠的接地系统和保护电路,所有功能单元均能按规定的性能要求,分断短路电流,进线单元具有三段保护特性。因此,可以保证供电的可靠性,和设备与系统的安全。
所有功能单元,均可通过接口件与PC线板(可编程序控制器)或微处理机连结,作为自动控制系统的执行单元,根据用户需要还可以提供其它内容的功能单元和功能组合,该产品适用于交流380V,频率50Hz的电路中。
型号及其含义

主要技术性能特点
· 主要电器性能符合国际电工委员会|EC标准和美国电气制造商协会NEMA标准。
· 每台柜可用隔离变压器将主、辅电路分开,辅助电路的操作电源为50Hz,220V;信号电源为50Hz,6V。
· 受电主开关具有三段(瞬间、短延时及过载)保护,为与下一级主开关(具有瞬时及过载二段保护)配合,取消瞬间一段,避免了越级跳闸。且具有自投、无自投和切换装置供选用。
· 水平母线具有单母线分段和不分段两种,当采用单母线分段时,母联开关亦具有自投、无自投和切换装置。
· 电动机控制电路具有短路瞬时、过载、欠压释放及断相保护。
· 各功能单元中的交流接触采用无声运行时,具有节能功能。同时,当电源消失后具延时(大于0.3s、小于0.5s)释放的特性。因此不加装电机各自启动继电器亦能在0.3s以内(重合闸或备用电源自投时间小于0.3s)恢复供电时,保证电动机继续运行。
· 馈电电路主开关具有瞬时和过载保护,当用户需要时,可加装漏电保护。.
· 照明及家用电器电路主开关具有瞬成时,过载和漏电保护,本电路尤宜於电钻、手提砂轮机.等移动电器的供电。
· 受电电路装有电流表、有功和无功电度表。250A及以.上馈电电路可装或不装电流表及电度表。其他大于37kW或60A的电路安装有电流表。
· 事故时可加装灯光和报警装置。
使用条件
· 周围空气温度不高于+40°C,不低于-5°C,并用24小时内其平均温度不高于+35°C;
· 周围空气相对温度为+40°C时不超过50%;
· 在较低温度时允许有较大的相对湿度,如+20°C时为90%。
· 但应考虑到由于温度变化,有可有会偶然的产生适度的凝露;
· 户内使用,使用地点的海拔高度不得超过2000m;
· 应安装在无剧烈露动和冲击以及不足以使电器元件受到腐蚀的场所。
外形尺寸

主要技术数据
1、塑壳断路器主要有HDM1.CM1、TG、NS、S系列等元件,以HDM1为主列举其性能参数
| 开关型号 | HDM1-63 | HDM1-100 | HDM1-225 | HDM1-400 | HDM1-630 | ||
| 额定电流 | 63A | 100A | 225A | 400A | 630A | ||
| 额定电压 | 400V | ||||||
| 极数 | 3P、4P | ||||||
| 额定电流(A) | 10,16,20,32,40,50,63 | 16,20,32,40,50,63,80,100 | 100,125,160,180,200,225 | 225,250,315,350,400 | 400,500,630 | ||
| 短路保护 | 1m=10X|r | ||||||
| 分断能力 | L型25kAM型50kA | L型35kAM型50kA | L型35kAM型50kA | ||||
| 脱扣形式 | 热-电磁型 | ||||||
2、框架式断路器主要有HDW1、CW1、ME(DW17)、M、F、等系列元件,其性能参数具体如下:
| 标准及技术规范 | 低压成套开关设备和控制设备(TTA) | IEC439.1-1992 GB7251.1-1997 JB/T9661-1999 |
| 过电压类别 | IV | III |
| 污染等级 | 3 | |
| 额定工作电压(Ve) | 660V | 380V |
| 额定频率 | 50Hz | |
| 水平母线 | ||
| 额定电流(A) | 40003150250020001000 | |
| 额定短时耐受电流(kA) | 50(1S有效值) | |
| 额定峰值耐受电流(kA) | 105 | |
| 垂直母线 | ||
| 额定电流 | 1000A | |
| 额定短时耐受电流(kA) | 50 | |
| 额定峰值耐受电流(kA) | 105 | |
| 各类器件额定值 | ||
| 断路器单元(A) | 至4000 | |
| 抽屉单元,主触头额定电流(A) | 63-630 | |
| 外壳防护等级 | IP40、IP30 | |
订货须知
用户在产品订货时应提供以下资料:
·产品的全型号(包括主要电路方案号和辅助路方案号);
·主电路系统组合顺序图;
·辅助电路电气原理图;
·柜内元器件清单;
·产品其它特殊要求另提。
主要技术数据
1、塑壳断路器主要有HDM1.CM1、TG、NS、S系列等元件,以HDM1为主列举其性能参数
| 开关型号 | HDM1-63 | HDM1-100 | HDM1-225 | HDM1-400 | HDM1-630 | ||
| 额定电流 | 63A | 100A | 225A | 400A | 630A | ||
| 额定电压 | 400V | ||||||
| 极数 | 3P、4P | ||||||
| 额定电流(A) | 10,16,20,32,40,50,63 | 16,20,32,40,50,63,80,100 | 100,125,160,180,200,225 | 225,250,315,350,400 | 400,500,630 | ||
| 短路保护 | 1m=10X|r | ||||||
| 分断能力 | L型25kAM型50kA | L型35kAM型50kA | L型35kAM型50kA | ||||
| 脱扣形式 | 热-电磁型 | ||||||
2、框架式断路器主要有HDW1、CW1、ME(DW17)、M、F、等系列元件,其性能参数具体如下:
| 标准及技术规范 | 低压成套开关设备和控制设备(TTA) | IEC439.1-1992 GB7251.1-1997 JB/T9661-1999 |
| 过电压类别 | IV | III |
| 污染等级 | 3 | |
| 额定工作电压(Ve) | 660V | 380V |
| 额定频率 | 50Hz | |
| 水平母线 | ||
| 额定电流(A) | 40003150250020001000 | |
| 额定短时耐受电流(kA) | 50(1S有效值) | |
| 额定峰值耐受电流(kA) | 105 | |
| 垂直母线 | ||
| 额定电流 | 1000A | |
| 额定短时耐受电流(kA) | 50 | |
| 额定峰值耐受电流(kA) | 105 | |
| 各类器件额定值 | ||
| 断路器单元(A) | 至4000 | |
| 抽屉单元,主触头额定电流(A) | 63-630 | |
| 外壳防护等级 | IP40、IP30 | |
