产品详情
KYN28A-24铠装型移开式交流金属封闭开关设备
- 厂家信息
- 产品信息
- 规格参数
- 技术文档
康斯坦茨集团有限公司是集智能制造及技术研发高低压输配电设备、电能质量、电气自动化、技术咨询、科研、生产、销售、营运管理于一体的行业领先企业。旗下有品牌KONSTANZ,公司总部营运中心位于风景秀丽的中国·杭州。公司依托进口技术、原材料,以“KONSTANZ”为品牌,倾心服务于国家电网,冶金制造,石油化工、轨道交通,港口、机场,新能源,医药,轻化工、商业中心和大数据中心等领域。
公司先后获得国家高新技术企业、ISO9001质量管理体系认证、ISO14001环境管理体系、3C强制认证、CQC认证、职业安全健康管理、质量管理体系认证,以及软件著作权,实用发明专利等数十项资质证书,并与西门子、ABB、施耐德等企业建立了紧密的战略合作伙伴关系。公司采用了先进的生产设备和精密的检测试验仪器,同时在国内与专业院校进行技术合作,引入高科技工艺流程和高技术人才,公司拥有现代化的计算机辅助设计和数据运算仿真系统,有力保证了产品在行业领域的领先地位。
产品图片
KYN28A-24铠装型移开式交流金属封闭开关设备

产品概述
KYN28A-24铠装型移开式交流金属封闭开关设备,适用于户内三相50/60Hz,额定电压24kV的电力系统中,主要应用于发电厂、变电所.工矿企业及高层建筑中,作为接受和分配电能并对电路实行控制、保护和监测。KYN28A-24开关柜设备具有各种防止误操作的功能,包括防止带负电荷移动手车,防止接地开关闭合位置短路,防止带电合接地开关等功能。
KYN28A-24开关设备配置先进可靠的控制保护原件,母线采用热缩绝缘材料或环氧涂覆的绝缘手段,优化电极形状,柜体结构紧凑。YN28A-24型开关设备室技术先进、性能稳定、结构合理、适用方便、安全可靠的配电设备。
型号及含义

使用条件
· 环境温度:最高温度:+40°C,最低温度:-15°C,且在24h内测得的平均温度不超过35°C。
· 温度条件如下:日相对湿度的平均值不超过95%
月相对湿度的平均值不超过90%
日水蒸汽压力的平均值不超过2.2kpa月水蒸汽压力平均值不超过下8kpa
· 在这样的条件下偶尔会出现凝露。
· 海拔不超过1000m
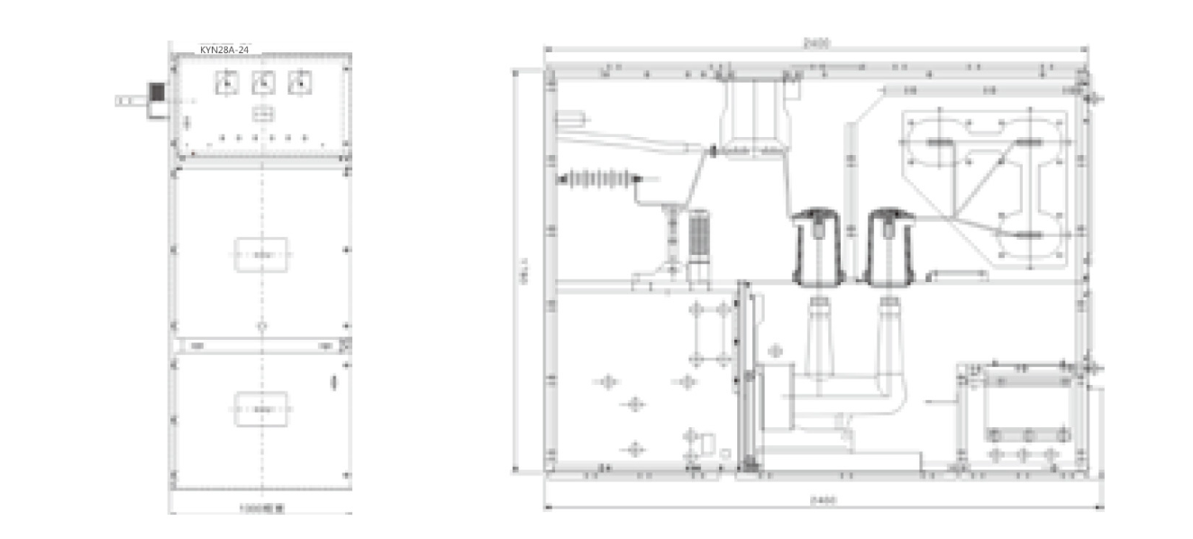
产品结构

主要技术数据
| 名称 | 单位 | 参数 |
| 额定电压 | kV | 24 |
| 额定频率 | Hz | 65(相间、对地)/79隔离断口) |
| 额定电流 | A | 125(相间、对地)/145(隔离断口) |
| 额定短路开断电流 | kA | 50 |
| 额定短路关合电流 | kV | 1250 |
| 4s额定短时耐受电流有效值) | kV | 25 |
| 额定动稳定电流(峰值) | kV | 63 |
| 1 min工频耐受电压(有效值) | kV | 25 |
| 富电冲击耐受电压(峰值) | kV | 63 |
| 额定操作顺序 | Hz | 分-0.3min-合分-0.3min—合分 |
| 防护等级 | IP4X(外壳):IP2X(断路器门]打开) |
订货须知
用户在产品订货时应提供以下资料:
·产品的全型号(包括主要电路方案号和辅助路方案号);
·主电路系统组合顺序图;
·辅助电路电气原理图;
·柜内元器件清单;
·产品其它特殊要求另提。
主要技术数据
| 名称 | 单位 | 参数 |
| 额定电压 | kV | 24 |
| 额定频率 | Hz | 65(相间、对地)/79隔离断口) |
| 额定电流 | A | 125(相间、对地)/145(隔离断口) |
| 额定短路开断电流 | kA | 50 |
| 额定短路关合电流 | kV | 1250 |
| 4s额定短时耐受电流有效值) | kV | 25 |
| 额定动稳定电流(峰值) | kV | 63 |
| 1 min工频耐受电压(有效值) | kV | 25 |
| 富电冲击耐受电压(峰值) | kV | 63 |
| 额定操作顺序 | Hz | 分-0.3min-合分-0.3min—合分 |
| 防护等级 | IP4X(外壳):IP2X(断路器门]打开) |
