KYN28A-12(F- C)铠装型移开式户内交流 金属封闭开关设备
- 厂家信息
- 产品信息
- 规格参数
- 技术文档
产品图片
KYN28A-12(F- C)铠装型移开式户内交流 金属封闭开关设备

产品概述
本装置系户内金属铠装抽出式开关设备(以下简称开关设备),系3-10kV三相交流50Hz单母线分段系统的成套配电装置。主要用于发电厂,中小型发电机送电、工矿企事业配电以及电业系统的二次变电所的受电、送电及大型高压电动机起动等。实行控制保护、监测之用,本开关设备满足DL/T404-91,IEC298,Gb3906等标准要求,具有防止带负荷推拉断路器手车、防止误分合断路器、防止接地开关处在闭合位置时关合断路器、防止误入带电隔室、防止在带电时误合接地开关的联锁功能,既可配用VS1真空断路器,又可配用ABB公司的VD4真空断路器。实为一一种性能优越的配电装置。
型号及含义

使用条件
正常条件:
· 周围空气温度:上限+40*C,下限-10°C;
· 海拔:设备安装场所的最大海拔高度1000m;
· 环境湿度:
日平均对湿度不大于95%;.
月平均对湿度不大于90%;
· 设备应安装在无剧烈震动和冲击的地方,地震烈度不超过8度;
· 周围空气应不受腐蚀性或可燃气体、水蒸气等明显污染;
· 特殊工作条件:
· 在超过GB3906规全的正常的环境条件下使用时,由用户和制造厂协商
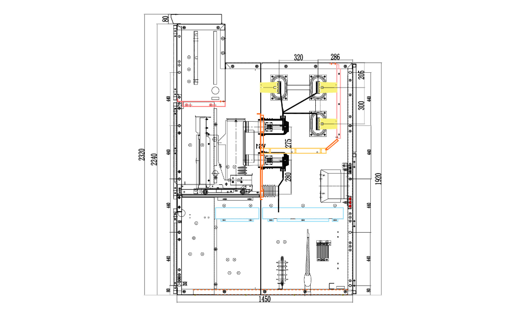
产品外形尺寸

结构简介
开关设备按GB3906-91中的铠装式金属封闭开关设备而设计。整体是由柜体和中置式可抽出部件(即手车)两大部分组成,见图1.柜体分四个单独的隔室,外壳防护等级为IP4X,各小室和断路器门打开时防护等级为IP2X。具有架空进出线、电缆进出线及其它功能方案,经排.列、组合后能成为各种方案形式的配电装置。本开关设备可以从正面进行安装调试和维护,因此它可以背靠背组成双重排列和靠墙安装,提高开关设备的安全性、灵活性,减少了占地面积。
产品尺寸及安装

主要技术数据
| •技术特性 | ||||
| 参数项目 柜型 | KYN28-12(F-C)/50 | XEC-08-23IG | DFW-12(F)/T 630 | Yb2710/0.4-630 |
| 额定电压 | 12KV | 12KV | 12KV | 10/0.4KV |
| 额定绝/min工频耐压 | 42/48KV | 42/48KV | 42/48KV | |
| 缘电压/雷电冲击电压 | 75/85KV | 75/85KV | 75/85 KV | |
| 额定电流 | 200A(F-C) | 315A(F-C) | 630A | |
| 额定短时耐受电流(4S) | 50KA | 31.5KA | 50KA | |
| 额定峰值耐受电流 | 125KA | 80KA | 125KA | |
| 防护等级 | 外壳防护等级IP4X | 外壳防护等级IP4X | 外壳防护等级IP33D | 外壳防护等级IP33D |
| 额定短路开断电流 | 50KA | / | / | / |
| 额定短路关合电流 | / | / | ||
| 频率 | 50Hz | 50Hz | 50Hz | 50Hz |
| 柜体尺寸(宽X深X高) | 800mmx1450mmx2600mm800mmx1450mmx2600mm | |||
手车
手车骨架也采用薄钢板以CNC机床加工后组装而成。手车与柜体绝缘配合机械联锁安全、可靠、灵活。根据用途不同,手车分为断路器手车、电压互感器手车、计量手车、隔离手车。各类手车按模数,积木式变化,同规格手车可以百分之百自由互换。手车在柜体内有断开位置/试验位置和工作位置,每一位置都分别有定位装置,以保证联锁可靠,必须按联锁防误操作程序进行操作。各种手车均采用蜗轮、蜗杆摇动推进,退出,其操作轻便、灵活,适合于各种值班人员操作。手车当需要移开柜体时,用一只专用转运车,便可以方便取出,进行各种检查、维护;而且采用中置式,整个小车体积小,检查、维护都极方便。断路器手车上装有真空断路器及其它辅助设备。当手车用转运车运入柜体断路器室时,便能可靠锁定在断开位置/试验位置;柜体位置显示灯便显示其所在位置。而且只有完全锁定后,才以有摇动推进机构,将手车推向工作位置。手车到工作位置后,推进手柄即摇不动,其对应位置显示其所在位置,手车的机械联锁能可靠保证手车只有在工作位置或试验位置,断路器才能进行合闸;手车只有在分闸状态,断路器才能移动。
订货须知
用户在产品订货时应提供以下资料:
·回路接线方案;
·开关柜排列图及平面布置图;
·开关柜内辅助回路、控制回路原理图(如需要);
·产品其它特殊要求另提。
主要技术数据
| •技术特性 | ||||
| 参数项目 柜型 | KYN28-12(F-C)/50 | XEC-08-23IG | DFW-12(F)/T 630 | Yb2710/0.4-630 |
| 额定电压 | 12KV | 12KV | 12KV | 10/0.4KV |
| 额定绝/min工频耐压 | 42/48KV | 42/48KV | 42/48KV | |
| 缘电压/雷电冲击电压 | 75/85KV | 75/85KV | 75/85 KV | |
| 额定电流 | 200A(F-C) | 315A(F-C) | 630A | |
| 额定短时耐受电流(4S) | 50KA | 31.5KA | 50KA | |
| 额定峰值耐受电流 | 125KA | 80KA | 125KA | |
| 防护等级 | 外壳防护等级IP4X | 外壳防护等级IP4X | 外壳防护等级IP33D | 外壳防护等级IP33D |
| 额定短路开断电流 | 50KA | / | / | / |
| 额定短路关合电流 | / | / | ||
| 频率 | 50Hz | 50Hz | 50Hz | 50Hz |
| 柜体尺寸(宽X深X高) | 800mmx1450mmx2600mm800mmx1450mmx2600mm | |||
手车
手车骨架也采用薄钢板以CNC机床加工后组装而成。手车与柜体绝缘配合机械联锁安全、可靠、灵活。根据用途不同,手车分为断路器手车、电压互感器手车、计量手车、隔离手车。各类手车按模数,积木式变化,同规格手车可以百分之百自由互换。手车在柜体内有断开位置/试验位置和工作位置,每一位置都分别有定位装置,以保证联锁可靠,必须按联锁防误操作程序进行操作。各种手车均采用蜗轮、蜗杆摇动推进,退出,其操作轻便、灵活,适合于各种值班人员操作。手车当需要移开柜体时,用一只专用转运车,便可以方便取出,进行各种检查、维护;而且采用中置式,整个小车体积小,检查、维护都极方便。断路器手车上装有真空断路器及其它辅助设备。当手车用转运车运入柜体断路器室时,便能可靠锁定在断开位置/试验位置;柜体位置显示灯便显示其所在位置。而且只有完全锁定后,才以有摇动推进机构,将手车推向工作位置。手车到工作位置后,推进手柄即摇不动,其对应位置显示其所在位置,手车的机械联锁能可靠保证手车只有在工作位置或试验位置,断路器才能进行合闸;手车只有在分闸状态,断路器才能移动。
