产品详情
XGN66-12箱型固定式交流金属封闭式开关设备
- 厂家信息
- 产品信息
- 规格参数
- 技术文档
环创电气有限公司坐落于风景秀丽的雁荡山西首,紧靠104国道,距温州机场三十公里,海陆空交通便利,是集研发、生产、经营为一体的多元化企业。公司主导产品有:高、低压成套设备、箱式变电站、智能环保空气柜、固体柜、环网柜、充气柜、电缆分支箱、直流电源柜、壁挂式直流电源柜及户内外高压真空断路器等。
公司现有一批出色的工程技术人员,拥有宽敞的净化生产区,雄厚的技术力量、齐全科技的检测设备。近年来公司以成熟的技术、完善的质量管理体系、诚信可靠的服务以及难能可贵的商业道德,使得公司得到了快速的发展。公司产品通过了ISO9001国际质量体系认证,并且严格执行相关国家标准和国际标准,广泛应用于国家电网、重点工程和大型企业中配套使用,销售网络遍及各省市自治区且远销海外。产品的技术质量及生产能力均受到用户的好评和赞扬。
产品图片
XGN66-12箱型固定式交流金属封闭式开关设备

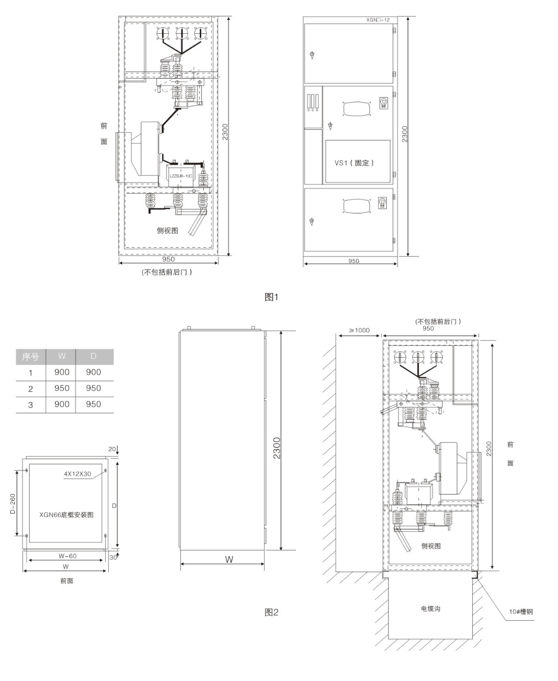
XGN66-12箱型固定式交流金属封闭式开关设备(以下简称开关柜)适用于3.6~12k V二相交流50Hz系统中作为接受与分配电能的装置,适合于频繁操作的场所和配装油开关的开关柜改造之用。其母线系统为单母线系统和单母线分段系统。
开关柜符合GB3906《3.6~40.5kV交流金属封闭开天设备和控制设备》和DL404《户内交流高压开关柜订货技术条件》的要求,开关柜外形美观、体积小、具有完整可靠的防误操作功能。开关柜内配装的主开关VS1-12型或ZN28-12型真空断路器,隔离开关采用GN30-12、GN19-10型隔离开关,接地开关采用JN15-12型接地开关。



